產品詳情

八層垂直升降式立體車庫設備
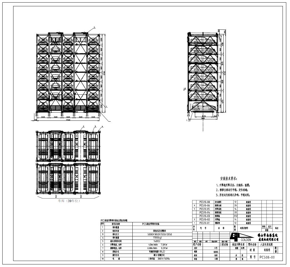
車庫運行圖示服務熱線:13600311671
產品介紹服務熱線:13600311671
一、垂直升降式立體停車庫運行原理
垂直升降類立體停車設備,又稱塔式車庫,采用與電梯類似的原理與結構,司機只需將車停到出入口車位,汽車升降機將自動把車輛提升并搬運到最近的空車位,完成整個停車過程。
本設備可以滿足地上高達20層車庫的使用要求,實現自動化快速安全存取車,特別適用于城市小面積大密度停車。
二、垂直升降式立體停車庫主要特點
1、占地少,車庫容量大,可實現高密度停車需求,大大提高土地使用率。
2、采用梳齒交換技術,存取車速度快。
3、駕駛人員只需將車停到出入口車位即可離開,實現管理智能化。
4、系統可自動識別進入車庫內人員,無人時系統方可啟動,安全可靠。
5、車庫可與主體建筑融為一體,外形美觀。
聯系高達

廣東高達重工機械實業股份有限公司
公司電話:18676501116
公司傳真:0757-88611999
公司郵箱:gdgaoda@126.com
公司地址:廣東省佛山市高明區荷城街道蓬山路22號
郵政編碼:528500
本文關鍵字:
廣東塔吊,塔式起重機,機械式立體車庫,港口起重機,碼頭裝卸吊機
采購:高達立體車庫設備
*
表示必填
| *聯系人: | 請填寫您的姓名,方便我們聯系您 |
| *聯系電話: | 請填寫您的聯系號碼 |
| *內容: | |
| 請填寫您的問題描述,有您的支持,是我們不斷前進的動力,感謝您的支持! | |
| *驗證碼: |
|
| 提交留言 重填 |

